Einpassungsplanung

Einpassungsplanung

Bei geplanter Anmietung oder vor dem Kauf eines Gebäudes oder einer Fläche (z.B. eines Bürokomplexes, einer Gemeinschaftspraxis oder eines großen Restaurants) ist oft nicht ganz sicher, ob alle notwendigen Funktionen auch wirklich untergebracht werden können.
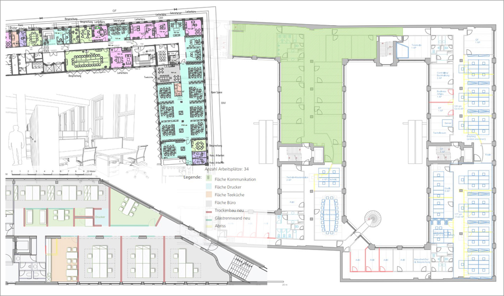
Da kommen Fachplanende mit Hang für knifflige Puzzles ins Spiel. Anhand von Kennzahlen, Achsmaßen und Gebäuderaster, Zonierungsstudien und schematischen Farbcodierungen prüfen wir:  Sind die Flächen für die Nutzung quantitativ geeignet? Wie können Abteilungen auf Etagen verteilt werden?  Bei welcher Aufteilung sind mehr Schreibtischarbeitsplätze regelkonform möglich? Wie können Raumabfolgen optimiert werden? Dies nennt man Einpassungsplanung. 

Die langjährige Erfahrung ermöglicht uns, ungewöhnliche Lösungen zu denken. Nebenflächen, Flure, kleine Räume können besser und anderes genutzt werden, als vielleicht gedacht? Eine geringfügige Wandöffnung oder Raumzusammenlegung birgt ungeahntes Potenzial. Laufwege könnten anders gelegt werden.

Trotz des zunächst konzeptionell-rechnerischen Ansatzes denken InnenarchitektInnen hier bereits von der späteren Nutzung her und beziehen Überlegungen zu Wegeführung, Wandstärken, angenehme Flurbreiten und mögliche Möblierung mit ein!

Einpassungsplanung Beispiel

 

Innenarchitektur ist die Fachdisziplin, die unsere tägliche Umgebung gestaltet. Menschen halten sich zu 80 % in Räumen auf. Räume beeinflussen unser Befinden und unser Tun in hohem Maße.
Dass Innenarchitekten und Innenarchitektinnen ansprechende, einladende, repräsentative Wohn- und Geschäftsräume gestalten, ein gutes Gefühl für Möbel und Farben haben und sich professionell um die Einrichtung kümmern, dafür gibt es ein wachsendes Verständnis. Innenarchitektur kann sogar noch mehr. Darüber sprechen wir in unserem Themenmonat: Was kann Innenarchitektur?

Aktuelles

Activity-based Working im Zellenbüro – 7 Impulse, wie Neues Arbeiten in alten Bürostrukturen gelingt

Sind Bürogebäude mit Zellenbüros veraltet? Nicht, wenn man die akustische Unterteilung clever für neue Arbeitsweisen und Funktionsbereiche nutzt. Lesen Sie mehr!

Grundschule nachhaltig und lernfördernd

Wie sollten Räume für Kinder gestaltet sein? Welche Aspekte fördern das Wohlbefinden und die Fantasie? Gedanken zu unserem Wettbewerbsentwurf...

Nachhaltigkeit im Büro – Biophile Atmosphäre im Wildnisbüro Deutschland

Wie sieht eigentlich nachhaltige Innenarchitektur aus? Im Wildnisbüro Deutschland wurde das Büro so gestaltet, dass es funktioniert, flexibel bleibt und Identität zeigt – und dabei auf Ressourcen achtet.

Denkmalpflege vor Ort: Staatsbibliothek Unter den Linden

In der Reihe „Denkmalpflege vor Ort“, einer Kooperation von Architekten- und Baukammer und dem Landesdenkmalamt, werden interessante Sanierungen und zeitgenössische Ergänzungen vorgestellt....

T wie Thinktank

Für ein Café und Wein-Bistro in Potsdam-Babelsberg unterstützten wir in der Entwurfsphase mit Gestaltungskonzept, Zeichnungen und Materialrecherchen....

5 Anregungen zum Thema „Mensch und Raum in der Arbeitswelt“

Was hat Raumgestaltung mit der Personalabteilung zu tun? Eine Menge! Wie Innenarchitektur auf Fachkräfte und im Bewerbungsprozess wirkt, erfahren Sie hier!

Strategieklausur – Rückzug aufs Land

Wie immer zu Beginn des Jahres zogen wir drei uns zur Klausur aufs Land zurück, um ohne Zeitdruck und fern der täglichen Projektarbeit richtungsweisende Themen durchzusprechen.