Auftraggeber: Helvetica
Deutschland GmbH

Standort: Berlin-Neukölln

Zeitraum: 2013-2014

Fläche: 240 m²

Themen:
3D-Visualisierung
zeitgemäßes Wohnen
flexible Raumaufteilung

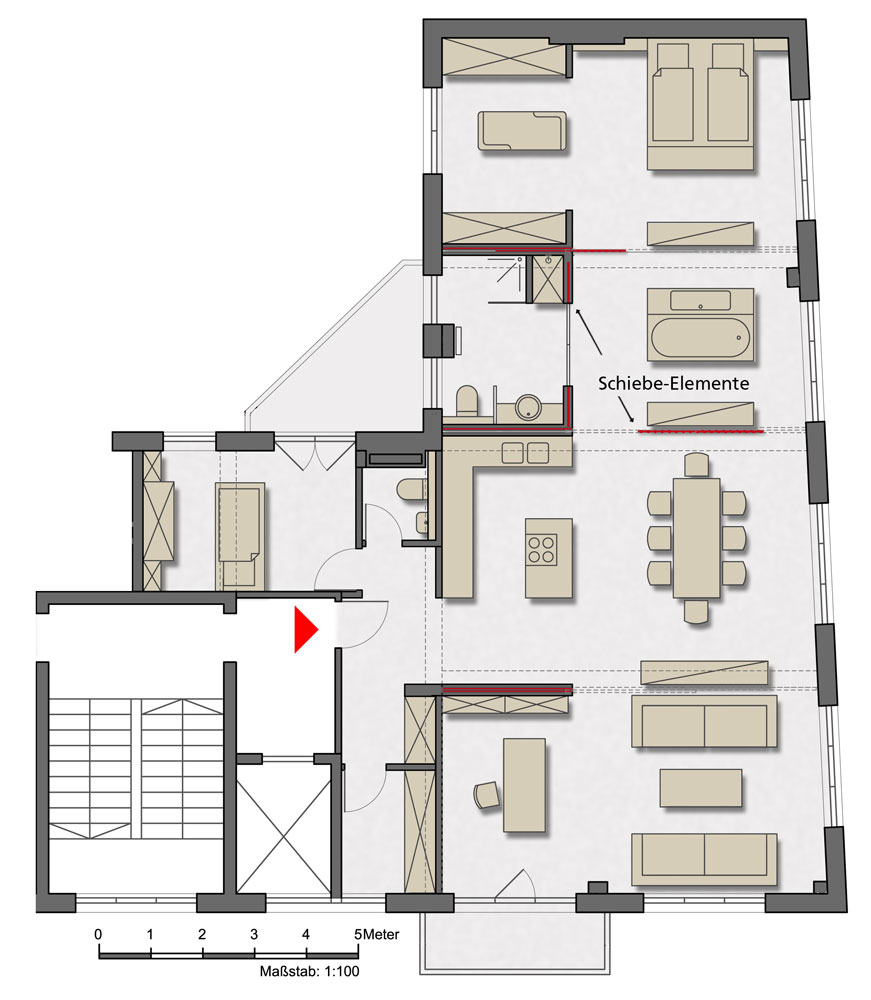
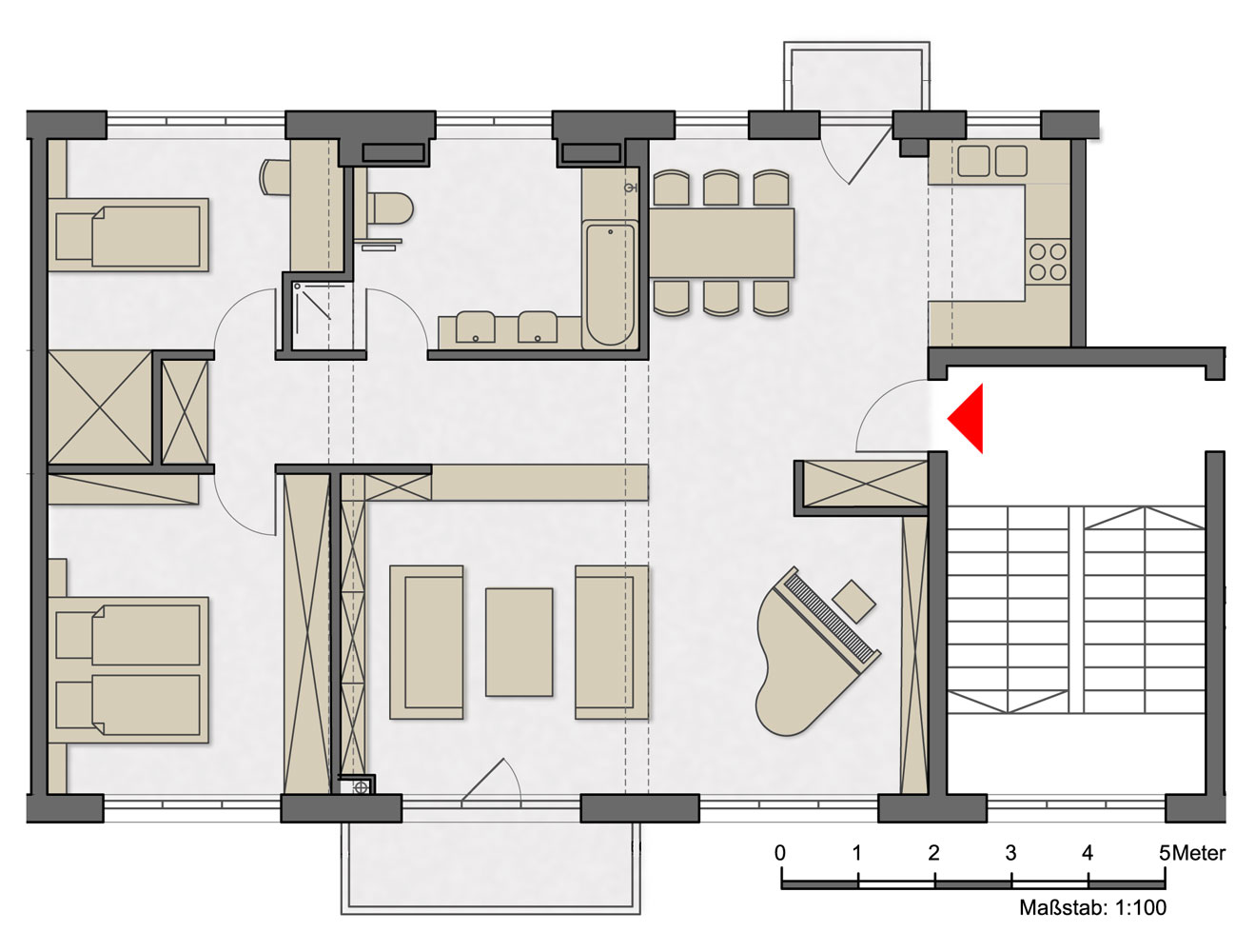
Wohnungsplanung: 3D-Visualisierungen für zukünftige Mieter

Eine Lagerhalle wird modernes Wohnhaus

Die Flächen eines alten Lager- und Verkaufsgebäudes in Berlin-Neukölln sollten in attraktiven Wohnraum umgewandelt werden.
Wir haben für die Fläche verschiedene Wohnszenarien entwickelt und für die Szenarien „Wohnen mit Büchern & Flügel“ und „Wohnen mit flexibel unterteilbaren Räumen“ Grundrissvarianten entwickelt.
Zur besseren Vorstellung wurden die Räumlichkeiten dann zusammen mit dazu passend entworfenen Farb- und Materialkonzepte visualisiert.
Sie benötigen auch eine Wohnungsplanung? Rufen sie uns an!

Visualisierung: Oliver Hecke, PICTORY GmbH