Auftraggeber: VVBI Capital AG

Standort: Leipzig

Zeitraum: 2014

Fläche: 450 m²

Themen:
Dachgeschossausbau
Altbau
Modernes Ambiente

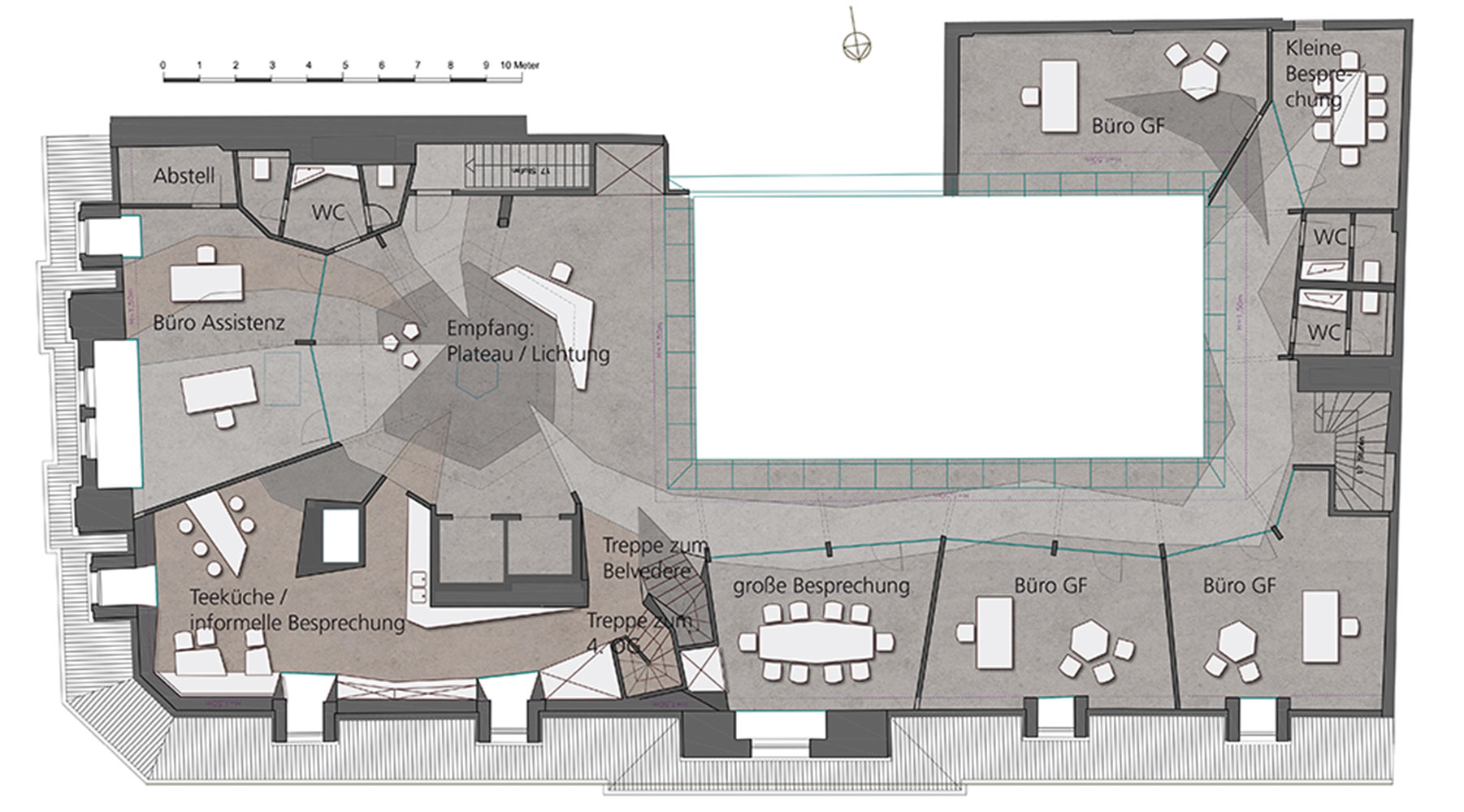
Bergkristall – Ein Büro im Dachgeschoss

Konzept zum Ausbau eines Dachgeschosses 

Im aufgesetzten Dachgeschoss eines denkmalgeschützten Hauses sollte eine Bürolandschaft entstehen. Dafür interpretierten wir typische Kenzeichen des Barock (dynamische Formen, bewegte Fassaden) auf moderne Art und Weise.
Die lichte Glasfassade zum Innenhof rückten wir in den Mittelpunkt. Durch die Anordnung der Wege um den Lichthof herum wird dieser von allen Seiten erlebbar. Um den Räumen trotz Dachschrägen eine angenehme Form zu geben, haben wir Stützen in Formen verwandelt die den Raum optisch vervollständigen.